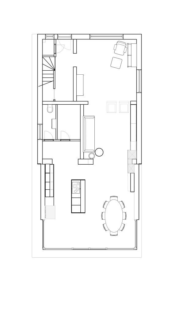
Meubelplan op maat
Met het meubelplan zorgen we dat jouw ruimtes functioneel, harmonieus en stijlvol worden ingericht. Samen bekijken we jouw wensen, de indeling en de ruimte, zodat alles praktisch én mooi geplaatst kan worden. Bovendien houd ik rekening met bestaande meubelstukken of stukken met een emotionele waarde die ik integreer in het geheel.
Een goed meubelplan kan het verschil maken tussen een ruimte die rommelig aanvoelt en een ruimte die optimaal benut wordt. We houden rekening met afmetingen, looproutes, lichtinval en stijl, zodat alles perfect op elkaar is afgestemd.
Dit pakket is bedoeld voor één verdieping.

Hoe werkt het?
Stap 1: We plannen een afspraak op een moment dat voor iedereen past. Ik kom bij je langs voor een intakegesprek en neem nauwkeurig de maten op van de ruimte(s). Samen bespreken we de mogelijkheden en jouw wensen.
Stap 2: Ik werk een gedetailleerd meubelplan voor je uit, met indelingsvoorstellen, moodboards, suggesties voor meubels en stylingtips. Alle meubelsuggesties krijg je in een meubellijst waar je meteen ook de aankooplink of het verkoopadres kan vinden, net als de aankoopprijs.
Stap 3: Je ontvangt het meubelplan in je digitale brievenbus en kan waar nodig nog telefonisch vragen stellen.
€ 480 per verdieping (incl. btw)






